3 245 045 000 Ft
8 500 000 €
- 6 220m²
IV. kerület kiváló részén, közel a Váci úthoz, Fóti úthoz és az M0-ás autóúthoz, eladó 5128 nm-es telekterülettel rendelkező iroda és raktárépületek, illetve telephely.
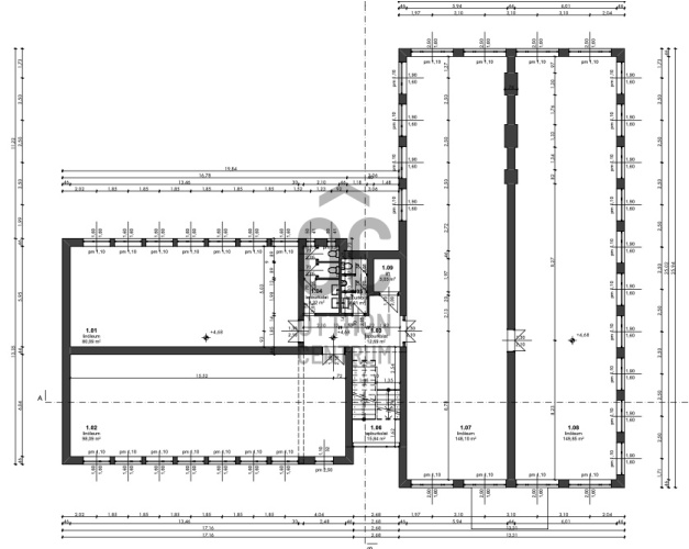
A területen jelenleg 2 épület található:
Egy 73 nm-es, utcafronti, földszintes melléképület,
továbbá egy 5 szintes, 2 048 nm-es, több rakodóterülettel és parkolóhellyel rendelkező, teherliftes főépület, kialakított iroda és raktárhelyiségekkel, szintenként mosdókkal, központi és egyedi hűtő-fűtőrendszerrel.
A telephely nagyobb teherautókkal és kamionnal is megközelíthető, így tökéletesen kihasználható akár központi DEPO-ként is.
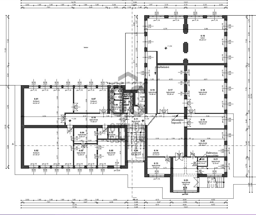
Építés alatt álló új épület:
Iroda és raktárépület - 4172 nm
-1. szint (parkoló, garázs) - 1326 nm (parkolóhelyek száma 73 db)
földszint (raktárak) - 865 nm
1. szint (raktár és irodák) - 1076 nm
2. szint (irodák) - 910 nm
A területen jelenleg 2 épület található:
Egy 73 nm-es, utcafronti, földszintes melléképület,
továbbá egy 5 szintes, 2 048 nm-es, több rakodóterülettel és parkolóhellyel rendelkező, teherliftes főépület, kialakított iroda és raktárhelyiségekkel, szintenként mosdókkal, központi és egyedi hűtő-fűtőrendszerrel.
A telephely nagyobb teherautókkal és kamionnal is megközelíthető, így tökéletesen kihasználható akár központi DEPO-ként is.
Építés alatt álló új épület:
Iroda és raktárépület - 4172 nm
-1. szint (parkoló, garázs) - 1326 nm (parkolóhelyek száma 73 db)
földszint (raktárak) - 865 nm
1. szint (raktár és irodák) - 1076 nm
2. szint (irodák) - 910 nm
Regisztrációs szám
UZ018298
Az ingatlan adatai
Értékesités
eladó
Jogi státusz
használt
Jelleg
üzleti célú
Típus
teljes épület
Építési mód
tégla
Méret
6 220 m²
Telek méret
5 128 m²
Föld feletti nettó méret
4 894 m²
Belmagasság
330 cm
Lakáson belüli szintszám
5
Állapot
Jó
Homlokzat állapota
Jó
Víz
Van
Gáz
Van
Villany
Van
Csatorna
Van
Lift
van
Lehetséges funkciók
values.realestate.lehetsegesFunkcio.1024, egészségügyi központ, oktatási központ
Láthatóság
Forgalmas főútról jól látható
Megközelíthetőseg
12 tonna feletti kamionnal behajtási engedély nélkül megközelíthető
Hasznosítás
üres
Vitéz Kornél
Hitelszakértő