889 000 Ft
2 310 €
- 280m²
BÉRELJEN IRODAHÁZAT!
Cegléd szívében, egy kiemelkedő lokációval rendelkező, kiváló állapotú önálló irodaház bérbeadásra kínálkozik, amely ideális választás lehet irodai vállalkozások számára.
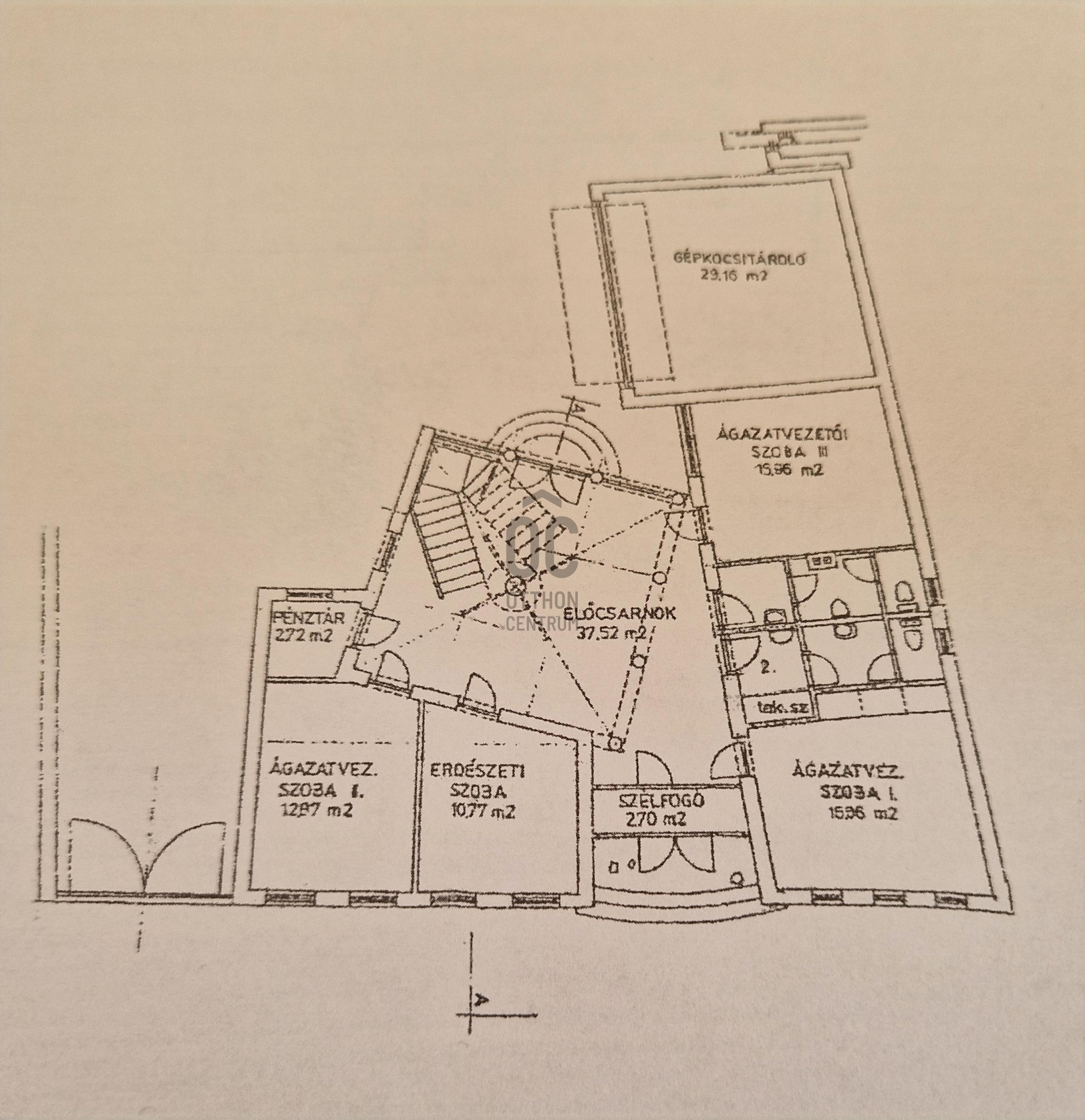
Az ingatlan 280 m2 nettó alapterületű ,így elegendő helyet biztosít a munkavégzéshez és a kényelmes ügyfélfogadáshoz. A modern kialakítású irodaházban beépített bútorok és szekrények találhatók, amelyek nemcsak esztétikai, hanem praktikus szempontból is hozzájárulnak a mindennapi munkafolyamatok gördülékenységéhez.
A környék ellátottsága kiváló, a közeli üzletek, éttermek és szolgáltatások könnyen megközelíthetők, így az itt dolgozók számára minden szükséges kényelem adott.
A központi elhelyezkedésnek köszönhetően a cég könnyen elérhető mind a helyi, mind a távolabbi ügyfelek számára.
A kitűnő közlekedés lehetővé teszi, hogy az ingatlan gyorsan megközelíthető legyen autóval és tömegközlekedéssel egyaránt.
Az ingatlan két garázs és belső parkolóval is rendelkezik, így a parkolás sosem jelent majd problémát.
Az ingatlan előtt is a parkolás díjmentes.
Az épület világos, tágas terekkel rendelkezik, amelyek ideálisak a kreatív munkafolyamatokhoz.
A jövőbeli bővítési lehetőségek is adottak, hiszen az ingatlan más funkciókra is átalakítható, így érdemes szem előtt tartani a hosszú távú terveket.
Cegléd nemcsak a gazdasági lehetőségeiről ismert, hanem a kulturális és szabadidős programjairól is. A város kedvező adottságai és a környék csendes, biztonságos légköre ideális környezetet biztosít a munkához és a pihenéshez egyaránt.
Az ingatlan bérbeadásával nem csupán egy helyet kínálunk, hanem egy olyan lehetőséget, ahol a vállalkozása szárnyalhat. Amennyiben kérdései merülnének fel az ingatlannal kapcsolatban, vagy szeretné megtekinteni a helyszínt, bizalommal keressen minket. Célunk, hogy Ön megtalálja az ideális irodát, ahol a vállalkozása igazán otthonra találhat.
HA FELKELTETTEM ÉRDEKLŐDÉSÉT FORDULJON HOZZÁM BIZALOMMAL!
NÉZZÜK MEG EGYÜTT!
A hirdetésben szereplő információk a megbízótól származnak. Pontosságukért felelősséget nem vállalunk.
Amennyiben hitelre van szüksége irodánkban teljes körű bankfüggetlen hitel ügyintézéssel állunk rendelkezésére.
Az ingatlan 280 m2 nettó alapterületű ,így elegendő helyet biztosít a munkavégzéshez és a kényelmes ügyfélfogadáshoz. A modern kialakítású irodaházban beépített bútorok és szekrények találhatók, amelyek nemcsak esztétikai, hanem praktikus szempontból is hozzájárulnak a mindennapi munkafolyamatok gördülékenységéhez.
A környék ellátottsága kiváló, a közeli üzletek, éttermek és szolgáltatások könnyen megközelíthetők, így az itt dolgozók számára minden szükséges kényelem adott.
A központi elhelyezkedésnek köszönhetően a cég könnyen elérhető mind a helyi, mind a távolabbi ügyfelek számára.
A kitűnő közlekedés lehetővé teszi, hogy az ingatlan gyorsan megközelíthető legyen autóval és tömegközlekedéssel egyaránt.
Az ingatlan két garázs és belső parkolóval is rendelkezik, így a parkolás sosem jelent majd problémát.
Az ingatlan előtt is a parkolás díjmentes.
Az épület világos, tágas terekkel rendelkezik, amelyek ideálisak a kreatív munkafolyamatokhoz.
A jövőbeli bővítési lehetőségek is adottak, hiszen az ingatlan más funkciókra is átalakítható, így érdemes szem előtt tartani a hosszú távú terveket.
Cegléd nemcsak a gazdasági lehetőségeiről ismert, hanem a kulturális és szabadidős programjairól is. A város kedvező adottságai és a környék csendes, biztonságos légköre ideális környezetet biztosít a munkához és a pihenéshez egyaránt.
Az ingatlan bérbeadásával nem csupán egy helyet kínálunk, hanem egy olyan lehetőséget, ahol a vállalkozása szárnyalhat. Amennyiben kérdései merülnének fel az ingatlannal kapcsolatban, vagy szeretné megtekinteni a helyszínt, bizalommal keressen minket. Célunk, hogy Ön megtalálja az ideális irodát, ahol a vállalkozása igazán otthonra találhat.
HA FELKELTETTEM ÉRDEKLŐDÉSÉT FORDULJON HOZZÁM BIZALOMMAL!
NÉZZÜK MEG EGYÜTT!
A hirdetésben szereplő információk a megbízótól származnak. Pontosságukért felelősséget nem vállalunk.
Amennyiben hitelre van szüksége irodánkban teljes körű bankfüggetlen hitel ügyintézéssel állunk rendelkezésére.
Regisztrációs szám
UZ018115
Az ingatlan adatai
Értékesités
kiadó
Jogi státusz
használt
Jelleg
üzleti célú
Típus
teljes épület
Építési mód
tégla
Méret
280 m²
Telek méret
426 m²
Föld feletti nettó méret
280 m²
Fűtés
Gáz cirkó
Belmagasság
280 cm
Lakáson belüli szintszám
1
Állapot
Kiváló
Homlokzat állapota
Kiváló
Építés éve
1996
Garázs férőhely
2
Víz
Van
Gáz
Van
Villany
Van
Csatorna
Van
Lehetséges funkciók
önálló irodaház, iroda, iroda és bemutatóterem, vagy üzlet, iroda és raktár, bemutatóterem, bemutatóterem és szervíz, vagy raktár, sportközpont, egészségügyi központ, oktatási központ, önálló irodaház
Láthatóság
Mellékutcában utcafronton lévő
Megközelíthetőseg
Mellékutcára nyíló bejárat
Hasznosítás
üres