OTTHON CENTRUM
  • Vásárolnék
  • Vásárolnék
    • Vétel
    • Bérlés
    • Új ingatlanok
  • Eladnék
  • Eladnék
    • Eladás
    • Kiadás
    • Felezőcsomag
  • Pénzügyek
  • Rólunk
  • Rólunk
    • Magunkról
    • Hírek, elemzések
    • Elemzési divízió
    • Dolgozz velünk
    • Légy franchise partnerünk
    • Együttműködő Partneri Program
    • Befektetőknek
  • Irodáink
  • Kapcsolat
    • Irodáink
  • Jogi információk
    • Adatkezelési tájékoztató
    • Hírdetmények
    • Impresszum
    • Pénzkezelési szabályzat
    • Szolgáltatási nyilatkozat
    • Jogi nyilatkozat
    • Nyereményjáték szabályzat
  • Bejelentkezés
  • EN
Bauhaus illustration
Mindegy
Mindegy
Város, kerület, városrész
Miskolc
1 kiválasztva
-
Ár M Ft
m Ft
-
Ár e Ft
e Ft
-
Méret m²
m²
-
Szoba db
db
Regisztrációs szám Projektek Részletes kereső
Jogi státusz
Mindegy
Típus
Mindegy
Típus
Mindegy
Típus
Mindegy
Típus
Mindegy
Funkció
Mindegy
Típus
Mindegy
Építési mód
Mindegy
fűtés
Mindegy
Állapot
Mindegy
Kilátás
Mindegy
Lépcsőház típusa
Mindegy
Fürdőszobák száma
Emelet
Mindegy
Mindegy
Építés éve
Hol keres?
Nincs találat
  • Budapest
  • Vidék

Kiadó lakás - Miskolc

1 ingatlan

kiadó lakás

image
image
image
image
image
image
image
image
image
image
image
image
image
image
1/14
Miskolc
124m²
Belváros
3 szoba
240e Ft 630 €
Ideális választás, ha irodájának, rendelőjének keres helyet a belvárosban vagy nagy lakást bérelne!

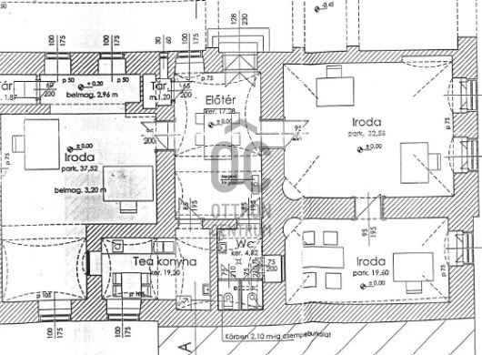
Miskolcon, a Városházától 25 méterre kiadó egy polgári jellegű, 124 m2-es alapterületű, utcára néző lakás hosszú távra. Jellemzői: - földszinti lakás - különleges boltíves kialakítású plafon, nagy belmagasság - 3 tágas szoba (37 és 33 m2-esek a legnagyobbak), előszoba, konyha, mosdó és tároló - irodának, rendelőnek tökéletes választás belső elrendezésének köszönhetően - lakás céljára is megfelelő - bútorozatlan - fa nyílászárók, új beltéri ajtók, festett falak, parketta és hidegburkolatok - egyedi fűtés gázkazánnal - vastag falaknak köszönhetően nyáron hűs, télen jól tartja a meleget - 32 m2-es pince tartozik hozzá, melynek bérlése külön megállapodás tárgya Két havi kaució szükséges és legalább egy éves bérlés! Egyedi lehetőség, egyedi ingatlan Miskolc központjában!

1 / 1 ingatlan
  • Miskolc
  • kiadó lakás a környéken
  • Legfontosabb eladó
  • Legfontosabb kiadó
  • kiadó lakás 1
  • kiadó üzleti célú 6
  • kiadó lakás Miskolc 1
  • kiadó lakás Ózd 1
  • eladó lakás Abádszalók 2
  • eladó lakás Abony 1
  • eladó lakás Ajka 8
  • eladó lakás Albertirsa 2
  • eladó lakás Alsóörs 10
  • eladó lakás Alsópáhok 2
  • eladó lakás Aszód 1
  • eladó lakás Aszófő 5
  • eladó lakás Bácsalmás 1
  • eladó lakás Baja 4
  • eladó lakás Balatonakarattya 4
  • eladó lakás Balatonalmádi 7
  • eladó lakás Balatonboglár 9
  • eladó lakás Balatonfenyves 5
  • eladó lakás Balatonföldvár 11
  • eladó lakás Balatonfüred 16
  • eladó lakás Balatonfűzfő 2
  • eladó lakás Balatongyörök 1
  • eladó lakás Balatonlelle 8
  • eladó lakás Balatonmáriafürdő 2
  • eladó lakás Balatonszárszó 5
  • eladó lakás Balatonszemes 3
  • eladó lakás Balatonszepezd 1
  • eladó lakás Balatonudvari 1
  • eladó lakás Balmazújváros 11
  • eladó lakás Bátonyterenye 1
  • eladó lakás Bázakerettye 1
  • eladó lakás Berettyóújfalu 3
  • eladó lakás Berhida 1
  • eladó lakás Biatorbágy 2
  • eladó lakás Biharnagybajom 1
  • eladó lakás Bóly 2
  • eladó lakás Borsodnádasd 1
  • eladó lakás Budakeszi 6
  • eladó lakás Budaörs 9
  • eladó lakás Budapest I. kerület 64
  • eladó lakás Budapest II. kerület 137
  • eladó lakás Budapest II/A. kerület 8
  • eladó lakás Budapest III. kerület 133
  • eladó lakás Budapest IV. kerület 54
  • eladó lakás Budapest IX. kerület 106
  • eladó lakás Budapest V. kerület 197
  • eladó lakás Budapest VI. kerület 234
  • eladó lakás Budapest VII. kerület 223
  • eladó lakás Budapest VIII. kerület 194
  • eladó lakás Budapest X. kerület 49
  • eladó lakás Budapest XI. kerület 125
  • eladó lakás Budapest XII. kerület 71
  • eladó lakás Budapest XIII. kerület 365
  • eladó lakás Budapest XIV. kerület 110
  • eladó lakás Budapest XIX. kerület 28
  • eladó lakás Budapest XV. kerület 44
  • eladó lakás Budapest XVI. kerület 17
  • eladó lakás Budapest XVII. kerület 21
  • eladó lakás Budapest XVIII. kerület 40
  • eladó lakás Budapest XX. kerület 32
  • eladó lakás Budapest XXI. kerület 31
  • eladó lakás Budapest XXII. kerület 16
  • eladó lakás Budapest XXIII. kerület 10
  • eladó lakás Bük 3
  • eladó lakás Cegléd 29
  • eladó lakás Celldömölk 3
  • eladó lakás Csepreg 1
  • eladó lakás Cserkeszőlő 1
  • eladó lakás Cserszegtomaj 6
  • eladó lakás Csobánka 2
  • eladó lakás Csomád 1
  • eladó lakás Csopak 4
  • eladó lakás Csorna 1
  • eladó lakás Csömör 2
  • eladó lakás Dabas 1
  • eladó lakás Debrecen 156
  • eladó lakás Diósd 1
  • eladó lakás Dorog 2
  • eladó lakás Dunaharaszti 4
  • eladó lakás Dunakeszi 14
  • eladó lakás Dunaújváros 9
  • eladó lakás Edelény 3
  • eladó lakás Eger 8
  • eladó lakás Ercsi 2
  • eladó lakás Érd 12
  • eladó lakás Esztergom 2
  • eladó lakás Etyek 1
  • eladó lakás Felsőszentiván 1
  • eladó lakás Fertőszentmiklós 4
  • eladó lakás Fonyód 14
  • eladó lakás Fót 5
  • eladó lakás Füzesabony 1
  • eladó lakás Galgamácsa 2
  • eladó lakás Gárdony 9
  • eladó lakás Gelse 1
  • eladó lakás Göd 4
  • eladó lakás Gödöllő 3
  • eladó lakás Gutorfölde 1
  • eladó lakás Gyál 3
  • eladó lakás Gyömrő 6
  • eladó lakás Gyöngyös 6
  • eladó lakás Gyöngyösoroszi 1
  • eladó lakás Győr 67
  • eladó lakás Győrladamér 1
  • eladó lakás Hajdúböszörmény 4
  • eladó lakás Hajdúhadház 1
  • eladó lakás Hajdúsámson 1
  • eladó lakás Hajdúszoboszló 21
  • eladó lakás Halásztelek 2
  • eladó lakás Harkány 10
  • eladó lakás Hatvan 1
  • eladó lakás Hegykő 1
  • eladó lakás Helvécia 1
  • eladó lakás Herceghalom 3
  • eladó lakás Herend 3
  • eladó lakás Hévíz 41
  • eladó lakás Hódmezővásárhely 3
  • eladó lakás Ikrény 1
  • eladó lakás Isaszeg 1
  • eladó lakás Jánosháza 1
  • eladó lakás Kalocsa 2
  • eladó lakás Kápolnásnyék 3
  • eladó lakás Kaposvár 37
  • eladó lakás Kazincbarcika 3
  • eladó lakás Kecskemét 27
  • eladó lakás Kehidakustány 4
  • eladó lakás Kemecse 1
  • eladó lakás Kerepes 3
  • eladó lakás Keszthely 32
  • eladó lakás Kistarcsa 2
  • eladó lakás Kisvárda 5
  • eladó lakás Komárom 2
  • eladó lakás Komló 9
  • eladó lakás Kozármisleny 1
  • eladó lakás Körmend 8
  • eladó lakás Kőröshegy 1
  • eladó lakás Kőszeg 13
  • eladó lakás Kőszegszerdahely 1
  • eladó lakás Kulcs 1
  • eladó lakás Lenti 1
  • eladó lakás Letenye 1
  • eladó lakás Lovászi 2
  • eladó lakás Makó 9
  • eladó lakás Marcali 1
  • eladó lakás Mezőhegyes 1
  • eladó lakás Mindszent 1
  • eladó lakás Miskolc 27
  • eladó lakás Mohács 11
  • eladó lakás Monor 2
  • eladó lakás Mór 1
  • eladó lakás Mosonmagyaróvár 3
  • eladó lakás Nagyatád 1
  • eladó lakás Nagybajcs 1
  • eladó lakás Nagycenk 1
  • eladó lakás Nagykanizsa 40
  • eladó lakás Nagykáta 1
  • eladó lakás Nagykovácsi 1
  • eladó lakás Nagykőrös 2
  • eladó lakás Nagyrada 1
  • eladó lakás Nagyszentjános 1
  • eladó lakás Nagytarcsa 1
  • eladó lakás Nemesbük 4
  • eladó lakás Nyáregyháza 2
  • eladó lakás Nyergesújfalu 2
  • eladó lakás Nyíregyháza 39
  • eladó lakás Oszkó 1
  • eladó lakás Ózd 11
  • eladó lakás Paks 23
  • eladó lakás Pápa 10
  • eladó lakás Pécel 2
  • eladó lakás Pécs 112
  • eladó lakás Pécsvárad 1
  • eladó lakás Perbál 1
  • eladó lakás Pétfürdő 3
  • eladó lakás Piliscsaba 3
  • eladó lakás Pilisjászfalu 1
  • eladó lakás Pilisvörösvár 2
  • eladó lakás Polgárdi 4
  • eladó lakás Pomáz 3
  • eladó lakás Rétság 1
  • eladó lakás Salgótarján 1
  • eladó lakás Sárbogárd 9
  • eladó lakás Sárospatak 1
  • eladó lakás Sárvár 1
  • eladó lakás Sátoraljaújhely 1
  • eladó lakás Siklós 5
  • eladó lakás Simontornya 1
  • eladó lakás Siófok 76
  • eladó lakás Sitke 1
  • eladó lakás Solymár 1
  • eladó lakás Sopron 12
  • eladó lakás Szántód 4
  • eladó lakás Százhalombatta 4
  • eladó lakás Szeged 14
  • eladó lakás Székesfehérvár 39
  • eladó lakás Szekszárd 22
  • eladó lakás Szentendre 4
  • eladó lakás Szentgotthárd 1
  • eladó lakás Szigetcsép 1
  • eladó lakás Szigethalom 2
  • eladó lakás Szigetszentmiklós 13
  • eladó lakás Szigetvár 4
  • eladó lakás Szolnok 15
  • eladó lakás Szombathely 18
  • eladó lakás Tahitótfalu 1
  • eladó lakás Tamási 1
  • eladó lakás Tapolca 8
  • eladó lakás Tárnok 1
  • eladó lakás Tata 7
  • eladó lakás Tatabánya 15
  • eladó lakás Telki 1
  • eladó lakás Teskánd 2
  • eladó lakás Tét 1
  • eladó lakás Tiszafüred 5
  • eladó lakás Tófej 1
  • eladó lakás Tokodaltáró 1
  • eladó lakás Tolna 1
  • eladó lakás Törökbálint 4
  • eladó lakás Újlengyel 2
  • eladó lakás Úny 1
  • eladó lakás Üllő 3
  • eladó lakás Üröm 3
  • eladó lakás Vác 15
  • eladó lakás Vácrátót 1
  • eladó lakás Várpalota 6
  • eladó lakás Vásárosnamény 4
  • eladó lakás Vasvár 2
  • eladó lakás Vecsés 1
  • eladó lakás Velence 4
  • eladó lakás Veresegyház 3
  • eladó lakás Veszprém 19
  • eladó lakás Vonyarcvashegy 1
  • eladó lakás Záhony 1
  • eladó lakás Zákány 3
  • eladó lakás Zalacsány 3
  • eladó lakás Zalaegerszeg 31
  • eladó lakás Zalakaros 2
  • eladó lakás Zalaszentgrót 2
  • eladó lakás Zamárdi 6
  • eladó lakás Zirc 1
  • eladó lakás Zsámbék 1
  • eladó lakás Zsombó 1
  • kiadó lakás Balatonfenyves 1
  • kiadó lakás Ballószög 1
  • kiadó lakás Budaörs 1
  • kiadó lakás Budapest I. kerület 12
  • kiadó lakás Budapest II. kerület 22
  • kiadó lakás Budapest III. kerület 12
  • kiadó lakás Budapest IV. kerület 1
  • kiadó lakás Budapest IX. kerület 12
  • kiadó lakás Budapest V. kerület 37
  • kiadó lakás Budapest VI. kerület 46
  • kiadó lakás Budapest VII. kerület 20
  • kiadó lakás Budapest VIII. kerület 5
  • kiadó lakás Budapest X. kerület 3
  • kiadó lakás Budapest XI. kerület 17
  • kiadó lakás Budapest XII. kerület 11
  • kiadó lakás Budapest XIII. kerület 35
  • kiadó lakás Budapest XIV. kerület 9
  • kiadó lakás Budapest XIX. kerület 1
  • kiadó lakás Budapest XV. kerület 1
  • kiadó lakás Budapest XVI. kerület 2
  • kiadó lakás Budapest XVIII. kerület 1
  • kiadó lakás Budapest XX. kerület 2
  • kiadó lakás Budapest XXII. kerület 2
  • kiadó lakás Cegléd 4
  • kiadó lakás Debrecen 40
  • kiadó lakás Dunaújváros 2
  • kiadó lakás Eger 1
  • kiadó lakás Érd 1
  • kiadó lakás Gárdony 1
  • kiadó lakás Göd 4
  • kiadó lakás Gyöngyös 2
  • kiadó lakás Győr 2
  • kiadó lakás Hajdúszoboszló 1
  • kiadó lakás Hévíz 1
  • kiadó lakás Kecskemét 1
  • kiadó lakás Kőszeg 1
  • kiadó lakás Miskolc 1
  • kiadó lakás Nagykőrös 1
  • kiadó lakás Nyíregyháza 4
  • kiadó lakás Ózd 1
  • kiadó lakás Paks 1
  • kiadó lakás Pápa 2
  • kiadó lakás Pécel 1
  • kiadó lakás Pécs 7
  • kiadó lakás Siófok 3
  • kiadó lakás Szeged 3
  • kiadó lakás Székesfehérvár 2
  • kiadó lakás Szekszárd 3
  • kiadó lakás Szolnok 2
  • kiadó lakás Tata 3
  • kiadó lakás Tatabánya 3
  • kiadó lakás Tolna 1
  • kiadó lakás Tököl 1
  • kiadó lakás Törökbálint 2
  • kiadó lakás Veszprém 1
  • kiadó lakás Zalaegerszeg 4

Kapcsolat

  1. Irodáink
  2. Ügyfélszolgálat:
    Otthon Centrum
    1023 Budapest,
    Lajos u. 28-32.
    +36 70 388 6000
    ugyfelszolgalat@oc.hu
  3. Sajtókapcsolat:
    sajto@oc.hu

Vásárolnék

  1. Vétel
  2. Bérlés
  3. Új ingatlanok
  4. Eladó lakás Budapest

Eladnék

  1. Eladás
  2. Kiadás
  3. Felezőcsomag

Pénzügyek

  1. Babaváró hitel
  2. Hitelkalkulátor
  3. Kölcsön
  4. Lakáshitel kalkulátor
  5. Személyi kölcsön kalkulátor
  6. Biztosítás

Rólunk

  1. Magunkról
  2. Hírek, elemzések
  3. Elemzési divízió
  4. Dolgozz velünk
  5. Légy franchise partnerünk
  6. Együttműködő Partneri Program
  7. Befektetőknek

Jogi információk

  1. Adatkezelési tájékoztató
  2. Impresszum
  3. Pénzkezelési szabályzat
  4. Szolgáltatási nyilatkozat
  5. Jogi nyilatkozat
  6. Nyereményjáték szabályzat
  1. Ügyfélszolgálat:
    Otthon Centrum
    1023 Budapest,
    Lajos u. 28-32.
    +36 70 388 6000
    ugyfelszolgalat@oc.hu
  2. Sajtókapcsolat:
    sajto@oc.hu