1 000 000 000 Ft
2 589 000 €
- 9 660m²
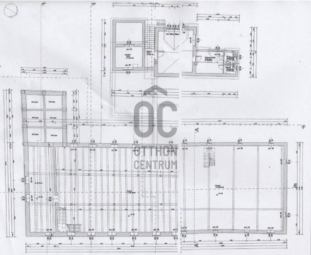
Az ingatan Gyöngyös Ny-i részén, fő út mellett, forgalmas kereszteződésben elhelyezkedő, több irányból megközelíthető, körbekerített saroktelken, 9660 nm zárt területen lévő épületegyüttes. (Az M3-as autópálya 8 km – gyorsforgalmi úton megközelíthető.) A telken belül nehéz gépkocsival is járható út van, a terület osztható, fejleszthető, közvetlen telek kapcsolata van a városi strandfürdővel, amely területet fejleszteni érdemes. A területen belül zárt udvaron külsőleg kialakított parkolóban lehet parkolni, mindezeken kívül hatályos elővásárlási engedélye van a patak-part melletti önkormányzati tulajdonú terület megvásárlására további parkolók létesítése céljából. A telek összközműves, bővített vízkapacitású + rendelkezik tüzivízzel és ásott kúttal, ami kiegészítő víz-ellátásra alkalmas, az energiaellátás 4 bekötési ponton 100 kw teljesítménnyel érhető el. Az épületek egyedi gázméréssel és fűtéssel rendelkeznek, valamint az étteremben kandallók és kemence szolgál kiegészítő fűtést. Optikai kábelrendszerrel kiépített hálózat van. Az épületek különböző minőségűek, korúak, hasznosításuk és fejleszthetőségük számos hozamgarantált lehetőséget kínálnak.
Volt malom, raktár és üzemi épület barnamezős beruházással 100 személyes szálloda kialakítására alkalmas:
Torony: 80 nm
I. emelet: 751 nm
II. emelet 367
földszint: 909 nm
pince 153 nm
A többi épület rövid ismertetése:
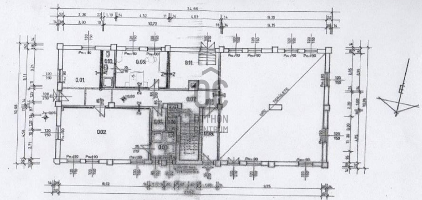
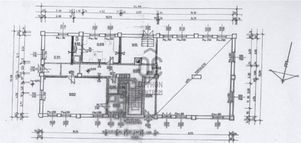
Étterem:
földszint: 672 nm
földszint fedett terasz: 76 nm
tetőtér galéria: 375 nm
terasz: 64 nm
látványkonyha kemencével: 45 nm
Vendégház, dolgozói szállás: 64 nm
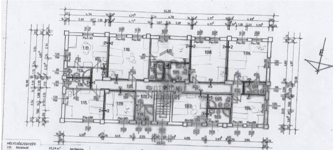
Bútorbolt, raktár:
földszint csarnoktér: 445 nm
földszint raktár: 319 nm
földszint üzlet: 500 nm
pinceszint: 336 nm
Panzió és iroda:
földszint 119 nm
emelet 207 nm
iroda 91 nm
Volt malom, raktár és üzemi épület barnamezős beruházással 100 személyes szálloda kialakítására alkalmas:
Torony: 80 nm
I. emelet: 751 nm
II. emelet 367
földszint: 909 nm
pince 153 nm
A többi épület rövid ismertetése:
Étterem:
földszint: 672 nm
földszint fedett terasz: 76 nm
tetőtér galéria: 375 nm
terasz: 64 nm
látványkonyha kemencével: 45 nm
Vendégház, dolgozói szállás: 64 nm
Bútorbolt, raktár:
földszint csarnoktér: 445 nm
földszint raktár: 319 nm
földszint üzlet: 500 nm
pinceszint: 336 nm
Panzió és iroda:
földszint 119 nm
emelet 207 nm
iroda 91 nm
Regisztrációs szám
BI000257
Az ingatlan adatai
Értékesités
eladó
Jelleg
fejlesztési célú
Típus
Teljes épület
Altípus
ipari
Méret
9 660 m²
Telek méret
9 660 m²
Föld feletti nettó méret
9 660 m²
Kialakítható nettó méret
9 660 m²
Kielakítható föld feletti nettó méret
9 660 m²
Fűtés
egyéb
Belmagasság
100 cm
Lakáson belüli szintszám
1
Állapot
Átlagos
Homlokzat állapota
Átlagos
Víz
Van
Gáz
Van
Villany
Van
Csatorna
Van
Kialakítható ingatlan
Szálloda, Panzió, Vendéglátás, étterem
Láthatóság
Forgalmas főútról jól látható
Megközelíthetőseg
Mellékutcára nyíló bejárat
Ruczek Krisztina
Hitelszakértő