OTTHON CENTRUM
Vásárolnék
Vásárolnék
Vétel
Bérlés
Új ingatlanok
Eladnék
Eladnék
Eladás
Kiadás
Felezőcsomag
Pénzügyek
Rólunk
Rólunk
Magunkról
Hírek, elemzések
Elemzési divízió
Dolgozz velünk
Légy franchise partnerünk
Együttműködő Partneri Program
Befektetőknek
Irodáink
Kapcsolat
Irodáink
Jogi információk
Adatkezelési tájékoztató
Hírdetmények
Impresszum
Pénzkezelési szabályzat
Szolgáltatási nyilatkozat
Jogi nyilatkozat
Nyereményjáték szabályzat
Bejelentkezés
EN
Mindegy
Mindegy
eladó
kiadó
bérleti jog
Mindegy
Mindegy
lakás
ház
nyaraló
telek
garázs
üzleti célú
mezőgazdasági
fejlesztési célú
Város, kerület, városrész
Budapest V. kerület
1
kiválasztva
-
Ár M Ft
m Ft
-
Ár e Ft
e Ft
-
Méret m²
m²
-
Szoba db
db
Keresés
Videós bemutatók
Keresés
Regisztrációs szám
Projektek
Részletes kereső
Kiemelt megbízás
Websétával
Árgaranciával
Banki ingatlan
Jogi státusz
Mindegy
Mindegy
Használt
Új
Típus
Mindegy
Családi ház
Ikerház
Sorház
Házrész
Tanya
Típus
Mindegy
Lakás
Ház
Típus
Mindegy
Építési
Fejlesztési
Típus
Mindegy
Egyedi
Teremgarázs
Funkció
Mindegy
Kiskereskedelem
Vendéglátóipari egység
Önálló irodaház
Iroda
Iroda és üzlet
Iroda és raktár
Bemutatóterem
Bemutatóterem és raktár
Iparicsarnok vagy raktár
Logisztikai központ
Parkolóház
Szálloda
Panzió
Sportközpont
Egészségügyi központ
Oktatási központ
Mezőgazdasági telephely
Bérház
Présház
Egyéb
Típus
Mindegy
Teljes épület
Épületrész
Építési mód
Mindegy
Tégla
Panel
Ytong
Könnyűszerkezetes
Csúsztatott zsalus
Prokoncept
Szilikát
Bauxitbeton
Gázbeton
Salakblokk
Kerámia
Készház
Kő
Gerendaház
Vályog
Vegyesfalazatú
Egyéb
fűtés
Mindegy
nincs
Gáz cirkó
gázkonvektor
cserépkályha (gáz)
gáz
vegyes cirkó
cserépkályha (vegyes)
vegyes fan-coil
elektromos cirkó
cserépkályha (elektromos)
elektromos fan-coil
elektromos kályha
elektromos, infra
faszén cirkó
cserépkályha (faszén)
faszén fan-coil
kályha (faszén)
egyedi távfűtés
távfűtés
központi fűtés
mérés nélküli, központi fűtés
megújuló
egyéb
gáz kazán
vegyestüzelésű kazán
hőszivattyú
hőszivattyú (levegő-levegő)
hőszivattyú (levegő-víz)
hőszivattyús fan-coil
hőszivattyús padlófűtés
Állapot
Mindegy
Bontandó
Felújítandó
Átlagos
Jó
Kiváló
Kilátás
Mindegy
utcai
udvari
kertre néző
Lépcsőház típusa
Mindegy
Körfolyosó
Zárt lépcsőház
Függőfolyosó
Nincs
Fürdőszobák száma
Emelet
Mindegy
-5. emelet
-4. emelet
-3. emelet
-2. emelet
-1. emelet
alagsor
szuterén
félszuterén
földszint
magasföldszint
félemelet
1. emelet
2. emelet
3. emelet
4. emelet
5. emelet
6. emelet
7. emelet
8. emelet
9. emelet
10. emelet
11. emelet
12. emelet
13. emelet
14. emelet
15. emelet
16. emelet
17. emelet
18. emelet
19. emelet
20. emelet
Mindegy
-5. emelet
-4. emelet
-3. emelet
-2. emelet
-1. emelet
alagsor
szuterén
félszuterén
földszint
magasföldszint
félemelet
1. emelet
2. emelet
3. emelet
4. emelet
5. emelet
6. emelet
7. emelet
8. emelet
9. emelet
10. emelet
11. emelet
12. emelet
13. emelet
14. emelet
15. emelet
16. emelet
17. emelet
18. emelet
19. emelet
20. emelet
Regisztrációs szám
Építés éve
Leírás
Otthon Start hitellel
Bezárás
Keresés
Hol keres?
Nincs találat
Összes eltávolítása
Budapest
Vidék
Budapest I. kerület
Budapest II. kerület
Budapest II/A. kerület
Budapest III. kerület
Budapest IV. kerület
Budapest V. kerület
Budapest VI. kerület
Budapest VII. kerület
Budapest VIII. kerület
Budapest IX. kerület
Budapest X. kerület
Budapest XI. kerület
Budapest XII. kerület
Budapest XIII. kerület
Budapest XIV. kerület
Budapest XV. kerület
Budapest XVI. kerület
Budapest XVII. kerület
Budapest XVIII. kerület
Budapest XIX. kerület
Budapest XX. kerület
Budapest XXI. kerület
Budapest XXII. kerület
Budapest XXIII. kerület
Budapest
budai oldal
pesti oldal
budai agglomeráció
pesti agglomeráció
Bács-Kiskun vármegye
Baranya vármegye
Békés vármegye
Borsod-Abaúj-Zemplén vármegye
Csongrád-Csanád vármegye
Fejér vármegye
Győr-Moson-Sopron vármegye
Hajdú-Bihar vármegye
Heves vármegye
Jász-Nagykun-Szolnok vármegye
Komárom-Esztergom vármegye
Nógrád vármegye
Pest vármegye
Somogy vármegye
Szabolcs-Szatmár-Bereg vármegye
Tolna vármegye
Vas vármegye
Veszprém vármegye
Zala vármegye
Baja
Békéscsaba
Debrecen
Dunaújváros
Eger
Esztergom
Érd
Győr
Hódmezővásárhely
Miskolc
Nagykanizsa
Nyíregyháza
Pécs
Salgótarján
Sopron
Szeged
Székesfehérvár
Szekszárd
Szolnok
Szombathely
Tatabánya
Veszprém
Zalaegerszeg
Balaton északi part
Balaton déli part
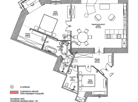
Kiadó lakás - Budapest V. kerület
46 ingatlan
Relevancia
Ár szerint növekvő
Ár szerint csökkenő
Méret szerint növekvő
Méret szerint csökkenő
Nm ár szerint növekvő
Nm ár szerint csökkenő
Keresés módosítása
kiadó lakás
Vissza
Tovább
1/35
kiadó lakás
Vissza
Tovább
1/10
kiadó lakás
Vissza
Tovább
1/20
kiadó lakás
Vissza
Tovább
1/16
kiadó lakás
Vissza
Tovább
1/9
kiadó lakás
Vissza
Tovább
1/19
kiadó lakás
Vissza
Tovább
1/18
kiadó lakás
Vissza
Tovább
1/18
kiadó lakás
Vissza
Tovább
1/11
kiadó lakás
Vissza
Tovább
1/19
kiadó lakás
Vissza
Tovább
1/8
kiadó lakás
Vissza
Tovább
1/17
Keresés módosítása
Továbbiak betöltése
Betöltés...
12
/ 46 ingatlan
Budapest V. kerület
kiadó lakás a környéken
Legfontosabb eladó
Legfontosabb kiadó
kiadó lakás
46
kiadó üzleti célú
22
kiadó lakás Budapest I. kerület
17
kiadó lakás Budapest II. kerület
23
kiadó lakás Budapest III. kerület
14
kiadó lakás Budapest IV. kerület
2
kiadó lakás Budapest IX. kerület
13
kiadó lakás Budapest V. kerület
46
kiadó lakás Budapest VI. kerület
53
kiadó lakás Budapest VII. kerület
13
kiadó lakás Budapest VIII. kerület
7
kiadó lakás Budapest X. kerület
1
kiadó lakás Budapest XI. kerület
13
kiadó lakás Budapest XII. kerület
12
kiadó lakás Budapest XIII. kerület
33
kiadó lakás Budapest XIV. kerület
3
kiadó lakás Budapest XIX. kerület
1
kiadó lakás Budapest XV. kerület
4
kiadó lakás Budapest XVIII. kerület
1
kiadó lakás Budapest XX. kerület
1
eladó lakás
Abádszalók
2
eladó lakás
Abony
3
eladó lakás
Ajka
8
eladó lakás
Almásfüzitő
1
eladó lakás
Alsóörs
11
eladó lakás
Alsópáhok
2
eladó lakás
Aszófő
5
eladó lakás
Bácsalmás
1
eladó lakás
Badacsonytomaj
2
eladó lakás
Baja
1
eladó lakás
Bakonyszentlászló
1
eladó lakás
Balatonakarattya
2
eladó lakás
Balatonalmádi
9
eladó lakás
Balatonboglár
8
eladó lakás
Balatonfenyves
3
eladó lakás
Balatonföldvár
17
eladó lakás
Balatonfüred
21
eladó lakás
Balatonfűzfő
3
eladó lakás
Balatongyörök
1
eladó lakás
Balatonkenese
1
eladó lakás
Balatonlelle
10
eladó lakás
Balatonmáriafürdő
1
eladó lakás
Balatonőszöd
1
eladó lakás
Balatonszárszó
2
eladó lakás
Balatonszemes
3
eladó lakás
Balatonszepezd
1
eladó lakás
Balatonudvari
1
eladó lakás
Ballószög
3
eladó lakás
Balmazújváros
9
eladó lakás
Barcs
1
eladó lakás
Bátonyterenye
1
eladó lakás
Bázakerettye
1
eladó lakás
Berettyóújfalu
3
eladó lakás
Berhida
1
eladó lakás
Biatorbágy
1
eladó lakás
Bicske
1
eladó lakás
Biharnagybajom
1
eladó lakás
Borsodnádasd
1
eladó lakás
Budakalász
1
eladó lakás
Budakeszi
6
eladó lakás
Budaörs
15
eladó lakás
Budapest I. kerület
71
eladó lakás
Budapest II. kerület
138
eladó lakás
Budapest II/A. kerület
10
eladó lakás
Budapest III. kerület
162
eladó lakás
Budapest IV. kerület
79
eladó lakás
Budapest IX. kerület
123
eladó lakás
Budapest V. kerület
234
eladó lakás
Budapest VI. kerület
279
eladó lakás
Budapest VII. kerület
273
eladó lakás
Budapest VIII. kerület
211
eladó lakás
Budapest X. kerület
67
eladó lakás
Budapest XI. kerület
154
eladó lakás
Budapest XII. kerület
107
eladó lakás
Budapest XIII. kerület
444
eladó lakás
Budapest XIV. kerület
170
eladó lakás
Budapest XIX. kerület
42
eladó lakás
Budapest XV. kerület
45
eladó lakás
Budapest XVI. kerület
25
eladó lakás
Budapest XVII. kerület
33
eladó lakás
Budapest XVIII. kerület
47
eladó lakás
Budapest XX. kerület
44
eladó lakás
Budapest XXI. kerület
44
eladó lakás
Budapest XXII. kerület
21
eladó lakás
Budapest XXIII. kerület
10
eladó lakás
Bugyi
1
eladó lakás
Bük
2
eladó lakás
Cegléd
32
eladó lakás
Celldömölk
3
eladó lakás
Csepreg
1
eladó lakás
Cserszegtomaj
1
eladó lakás
Csobánka
2
eladó lakás
Csopak
2
eladó lakás
Csorna
3
eladó lakás
Csurgó
2
eladó lakás
Dabas
1
eladó lakás
Debrecen
191
eladó lakás
Devecser
1
eladó lakás
Diósd
3
eladó lakás
Dorog
6
eladó lakás
Dunaalmás
1
eladó lakás
Dunaharaszti
4
eladó lakás
Dunakeszi
14
eladó lakás
Dunaújváros
13
eladó lakás
Dunavarsány
1
eladó lakás
Edelény
3
eladó lakás
Eger
7
eladó lakás
Egercsehi
1
eladó lakás
Ercsi
1
eladó lakás
Érd
19
eladó lakás
Erdőkertes
1
eladó lakás
Etyek
1
eladó lakás
Felsőszentiván
1
eladó lakás
Fertőszentmiklós
5
eladó lakás
Fonyód
14
eladó lakás
Fót
6
eladó lakás
Gárdony
8
eladó lakás
Gelse
1
eladó lakás
Göd
6
eladó lakás
Gödöllő
2
eladó lakás
Gutorfölde
1
eladó lakás
Gyömrő
5
eladó lakás
Gyöngyös
12
eladó lakás
Gyöngyössolymos
1
eladó lakás
Győr
81
eladó lakás
Győrladamér
1
eladó lakás
Hajdúböszörmény
7
eladó lakás
Hajdúsámson
1
eladó lakás
Hajdúszoboszló
21
eladó lakás
Halásztelek
3
eladó lakás
Harkány
13
eladó lakás
Hatvan
3
eladó lakás
Herceghalom
3
eladó lakás
Hévíz
32
eladó lakás
Hódmezővásárhely
3
eladó lakás
Ikrény
1
eladó lakás
Iregszemcse
1
eladó lakás
Jánosháza
1
eladó lakás
Jászapáti
1
eladó lakás
Jászberény
1
eladó lakás
Jobbágyi
2
eladó lakás
Kalocsa
2
eladó lakás
Kápolnásnyék
3
eladó lakás
Kaposvár
12
eladó lakás
Karcag
1
eladó lakás
Kazincbarcika
3
eladó lakás
Kecskemét
36
eladó lakás
Kehidakustány
4
eladó lakás
Kerepes
2
eladó lakás
Keszthely
34
eladó lakás
Kincsesbánya
1
eladó lakás
Kiskunlacháza
1
eladó lakás
Kistarcsa
6
eladó lakás
Kisvárda
5
eladó lakás
Komárom
2
eladó lakás
Komló
8
eladó lakás
Körmend
4
eladó lakás
Kőröshegy
2
eladó lakás
Kőszeg
15
eladó lakás
Kőszegszerdahely
1
eladó lakás
Kővágószőlős
2
eladó lakás
Kulcs
1
eladó lakás
Lábatlan
2
eladó lakás
Lenti
4
eladó lakás
Lepsény
1
eladó lakás
Letenye
2
eladó lakás
Lovászi
2
eladó lakás
Makó
5
eladó lakás
Marcali
4
eladó lakás
Mezőhegyes
1
eladó lakás
Mindszent
1
eladó lakás
Miskolc
29
eladó lakás
Mogyoród
2
eladó lakás
Mohács
8
eladó lakás
Monor
7
eladó lakás
Mór
1
eladó lakás
Mosonmagyaróvár
6
eladó lakás
Nádudvar
1
eladó lakás
Nagyatád
1
eladó lakás
Nagykanizsa
46
eladó lakás
Nagykáta
1
eladó lakás
Nagykőrös
1
eladó lakás
Nagymaros
1
eladó lakás
Nagytarcsa
1
eladó lakás
Nemesbük
4
eladó lakás
Nyergesújfalu
2
eladó lakás
Nyíregyháza
41
eladó lakás
Ócsa
1
eladó lakás
Oroszlány
2
eladó lakás
Oszkó
2
eladó lakás
Ózd
4
eladó lakás
Paks
23
eladó lakás
Pápa
8
eladó lakás
Páty
1
eladó lakás
Pécel
3
eladó lakás
Pécs
137
eladó lakás
Perbál
1
eladó lakás
Pétfürdő
2
eladó lakás
Pilis
1
eladó lakás
Piliscsaba
3
eladó lakás
Pilisjászfalu
1
eladó lakás
Pilisvörösvár
1
eladó lakás
Polgárdi
3
eladó lakás
Pomáz
2
eladó lakás
Ráckeve
3
eladó lakás
Sajóbábony
3
eladó lakás
Sajószentpéter
1
eladó lakás
Salgótarján
3
eladó lakás
Sárbogárd
6
eladó lakás
Sárospatak
1
eladó lakás
Sárvár
3
eladó lakás
Sátoraljaújhely
2
eladó lakás
Siklós
2
eladó lakás
Simontornya
1
eladó lakás
Siófok
91
eladó lakás
Sopron
23
eladó lakás
Szabadegyháza
2
eladó lakás
Szántód
3
eladó lakás
Százhalombatta
5
eladó lakás
Szeged
30
eladó lakás
Székesfehérvár
44
eladó lakás
Szekszárd
30
eladó lakás
Szentendre
9
eladó lakás
Szentes
1
eladó lakás
Szentgotthárd
1
eladó lakás
Szigethalom
1
eladó lakás
Szigetmonostor
4
eladó lakás
Szigetszentmárton
1
eladó lakás
Szigetszentmiklós
13
eladó lakás
Szigetvár
2
eladó lakás
Szolnok
12
eladó lakás
Szombathely
36
eladó lakás
Tahitótfalu
1
eladó lakás
Tapolca
16
eladó lakás
Tárnok
1
eladó lakás
Tata
9
eladó lakás
Tatabánya
18
eladó lakás
Téglás
1
eladó lakás
Telki
1
eladó lakás
Teskánd
2
eladó lakás
Tihany
1
eladó lakás
Tiszafüred
5
eladó lakás
Tiszavasvári
1
eladó lakás
Tófej
1
eladó lakás
Tokod
2
eladó lakás
Tokodaltáró
1
eladó lakás
Tolna
1
eladó lakás
Törökbálint
6
eladó lakás
Újlengyel
2
eladó lakás
Úny
1
eladó lakás
Üllő
4
eladó lakás
Üröm
1
eladó lakás
Vác
13
eladó lakás
Vácrátót
1
eladó lakás
Vámosszabadi
2
eladó lakás
Várpalota
5
eladó lakás
Vásárosnamény
3
eladó lakás
Vasvár
5
eladó lakás
Vecsés
2
eladó lakás
Veresegyház
3
eladó lakás
Veszprém
31
eladó lakás
Visegrád
1
eladó lakás
Vonyarcvashegy
2
eladó lakás
Záhony
2
eladó lakás
Zákány
4
eladó lakás
Zalacsány
4
eladó lakás
Zalaegerszeg
31
eladó lakás
Zalakaros
2
eladó lakás
Zalaszentgrót
2
eladó lakás
Zamárdi
5
eladó lakás
Zirc
1
eladó lakás
Zsámbék
1
kiadó lakás
Budapest I. kerület
17
kiadó lakás
Budapest II. kerület
23
kiadó lakás
Budapest III. kerület
14
kiadó lakás
Budapest IV. kerület
2
kiadó lakás
Budapest IX. kerület
13
kiadó lakás
Budapest V. kerület
46
kiadó lakás
Budapest VI. kerület
53
kiadó lakás
Budapest VII. kerület
13
kiadó lakás
Budapest VIII. kerület
7
kiadó lakás
Budapest X. kerület
1
kiadó lakás
Budapest XI. kerület
13
kiadó lakás
Budapest XII. kerület
12
kiadó lakás
Budapest XIII. kerület
33
kiadó lakás
Budapest XIV. kerület
3
kiadó lakás
Budapest XIX. kerület
1
kiadó lakás
Budapest XV. kerület
4
kiadó lakás
Budapest XVIII. kerület
1
kiadó lakás
Budapest XX. kerület
1
kiadó lakás
Cegléd
3
kiadó lakás
Debrecen
46
kiadó lakás
Dunaújváros
1
kiadó lakás
Érd
2
kiadó lakás
Esztergom
1
kiadó lakás
Göd
1
kiadó lakás
Gyöngyös
2
kiadó lakás
Győr
1
kiadó lakás
Hajdúszoboszló
1
kiadó lakás
Kecskemét
4
kiadó lakás
Keszthely
1
kiadó lakás
Kőszeg
1
kiadó lakás
Kőszegszerdahely
1
kiadó lakás
Miskolc
2
kiadó lakás
Nagykőrös
1
kiadó lakás
Nyíregyháza
4
kiadó lakás
Paks
2
kiadó lakás
Pápa
2
kiadó lakás
Pécs
5
kiadó lakás
Piliscsaba
1
kiadó lakás
Siófok
4
kiadó lakás
Sopron
1
kiadó lakás
Székesfehérvár
3
kiadó lakás
Szekszárd
5
kiadó lakás
Szentendre
1
kiadó lakás
Szigetszentmiklós
1
kiadó lakás
Szolnok
1
kiadó lakás
Tata
1
kiadó lakás
Tatabánya
1
kiadó lakás
Tolna
1
kiadó lakás
Vác
1
kiadó lakás
Veszprém
1
kiadó lakás
Zalaegerszeg
3